Dokumentácia k ohláseniu drobnej stavby + požiarna bezpečnosť (PBS)
Potrebujete ohlásiť prístrešok, plot alebo drobnú stavbu?
Pripravím vám kompletné podklady vrátane požiarnej bezpečnosti (PBS) pre potreby stavebného úradu na ohlásenie v zmysle (nového) Stavebného zákona č.25/2025 Z.z. aby to prešlo na úrade bez problémov.
Nemusíte riešiť, čo presne treba – stačí mi poslať základné podklady a zvyšok pripravím.
Oprávnenia na vypracovanie dokumentácie
- Mám stavebné vzdelanie, oprávnenie na projekciu jednoduchých a drobných stavieb
- Som špecialista požiarnej ochrany (ŠPO) v najvyššom stupni bez časového obmedzenia (BČO).
Dokumentácia obsahuje:
- Kópiu mojej živnosti na oprávnenie na vypracovanie dokumentácie a projektu jednoduchých stavieb, drobných stavieb a zmien týchto stavieb.
- Jednoduchú stavebnú technickú správu drobnej stavby + požiarnu správu.
- Okrúhle razítko a podpis špecialistu požiarnej ochrany v zmysle Zákona o ochrane pred požiarmi.
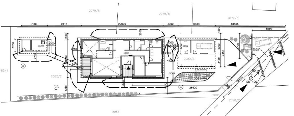
- Výkres situácie s vyznačenými parcelami a požiarne nebezpečným priestorom okolo drobnej stavby a odstupovými vzdialenosťami od iných požiarnych úsekov.
Pozor dokumentácia je zjednodušená pre potreby ohlásenia stavby, preto dokumentácia neobsahuje statický výpočet, ale je opisom Vami plánovanej stavby.
Vzorové použitie dokumentácie k ohláseniu drobnej stavby
Dokumentáciu k ohláseniu drobnej stavby vrátane požiarnej bezpečnosti (PBS) spracovávam najmä pre tieto typy jednoduchých a drobných stavieb:
- garáže
- prístrešky
- altánky
- pergoly
- terasy a verandy
- záhradné domčeky
- kôlne a sklady náradia
- drevárne, kuríny a voliéry
- technické miestnosti
- sauny a wellness domčeky
- zimné záhrady
- prístrešky pre auto
- parkovacie státia
- prístrešky na bicykle a smetné nádoby
- drobné hospodárske stavby
- skladové prístrešky
- záhradné pavilóny
- ploty a oplotenia pozemkov
- vybrané prístavby, nadstavby a stavebné úpravy rodinných domov
Aké podklady potrebujem
- adresu, a číslo parcely na ktorej bude stáť drobná stavba.
- nákres alebo typový projekt (link na produkt) plánovanej drobnej stavby, ak máte dostupný
- fotografie pozemku kde bude stáť drobná stavba zo všetkých uhlov (email, WhatsApp)
- Plánované rozmery stavby
- Plánované umiestnenie na pozemku
- Krátky stavebno-technický popis z akých stavebných konštrukcií plánujete drobnú stavbu budovať.
- Kto bude drobnú stavbu realizovať, alebo svojpomocne.
V Piešťanoch a okolí je možná aj moja osobná obhliadka pozemku.
Ako Vám dokumentáciu doručím
Po vypracovaní poštou (z-box / packeta) alebo osobne.
- rozmery stavby
- situáciu osadenia stavby
- vzdialenosti od susedných objektov
- fotku, náčrt alebo projekt
Cena
od 100 €
Pošlite mi podklady na WhatsApp a vypracujem vám cenovú ponuku.
Alebo vypíšte formulár na www.eohlasky.sk
Dokumentáciu najprv posielam ako náhľad (PDF s vodoznakom „NEPLATNÉ“), finálnu verziu s ohrúhlym razítkom špecialitu PO až po úhrade.
Štandardne 3 kópie v cene.
Možnosť poslania vytlačenej verzie (Packeta / Z-BOX) v cene.
Nezáväzný dopyt
Ak riešite požiarne odstupy pri ohlásení stavby, pošlite mi podklady a navrhnem vhodné riešenie.
